36 Mallacoota Crescent, ARMSTRONG CREEK
Contemporary tones fuse with modern appointments to present a low-maintenance family home with stunning appeal throughout
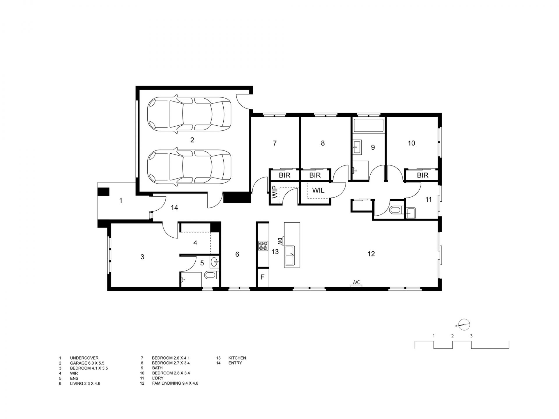
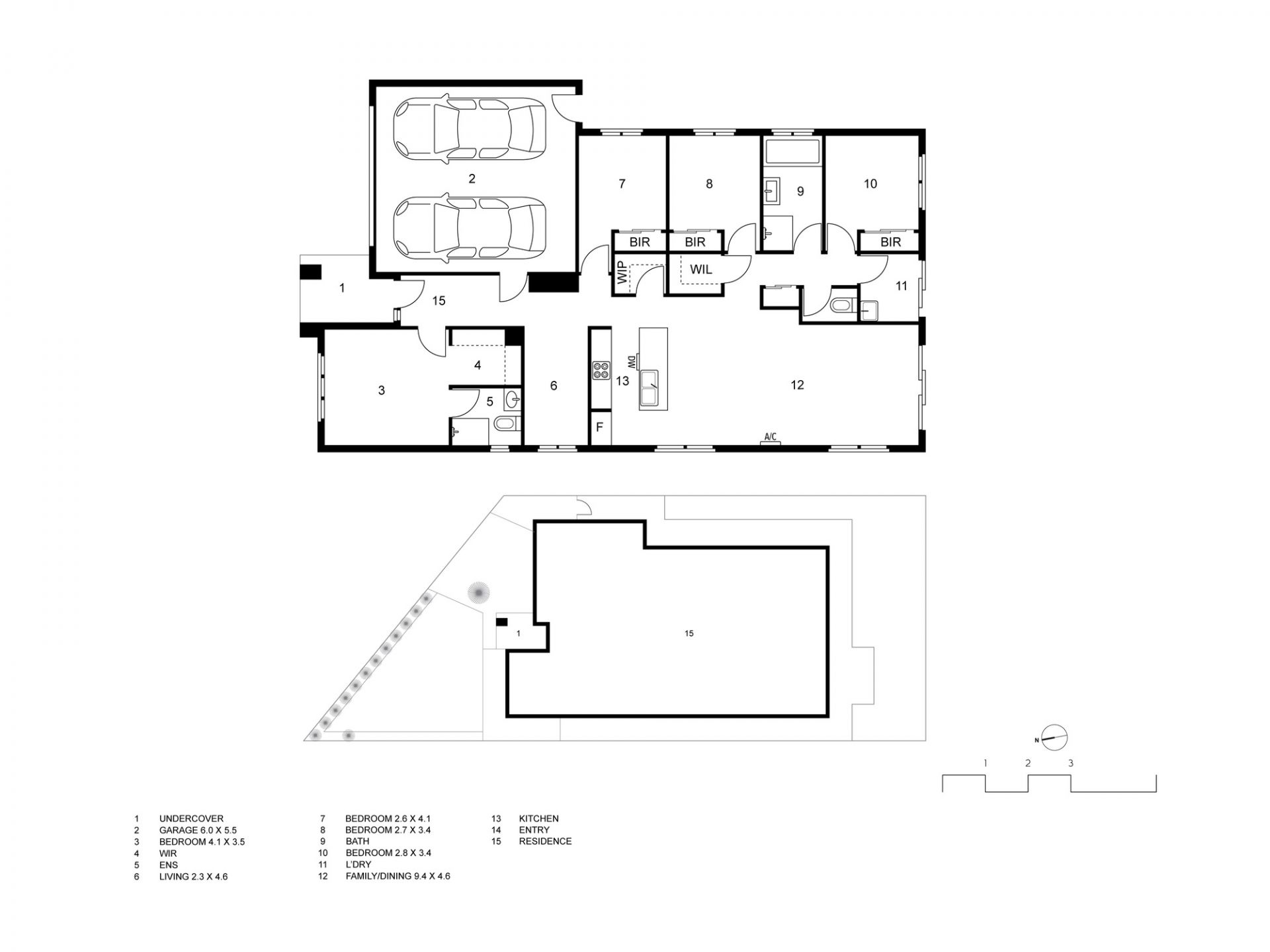
Set on a generous allotment in the exclusive Warralily Estate, this idyllic and community-minded neighbourhood offers a relaxed, quiet lifestyle that will appeal to professionals, couples, and families alike. The refined sense of living this property delivers is demonstrated through the flowing open floor plan, spacious hallway, stylish floorboards, and is sensationally zoned for modern family living. The sleek kitchen which showcases stainless steel appliances (gas cooktop) and glass splashbacks merge with the bright and airy dining. Catering for effortless indoor and outdoor entertaining, the alfresco area which adjoins the lounge room presents an outlook over the well-kept rear yard and offers plenty of space for all members of the family to enjoy. Comprising a large walk-in-robe and full ensuite, the master suite affords a sumptuous retreat. A further three bedrooms with robes, a sizeable family bathroom with quality appointments complete the versatile floor plan.
Contact The Agent
overview
-
8339193
-
House
-
Leased
-
36 Mallacoota Crescent ARMSTRONG CREEK VIC
-
4
-
2
-
2
-
2
-
Now
-
$2,260
